Bauausschusssitzung am 18. Juni 2020
Gemeinderat soll Bebauungsplan „Areal Fa. Gerstenmaier“ auf den Weg bringen – „Als Pendant zum urbanen Gebiet Aumatt“

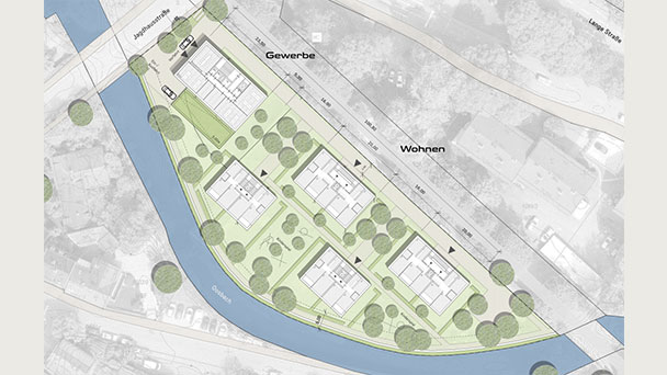
Auf dem Gelände der Firma Gerstenmaier sollen drei Wohngebäude und ein „Büroturm“ entstehen. Foto: Kohlbecker, Vielmo Architekten
Bericht von Nadja Milke
10.06.2020, 00:00 Uhr
Baden-Baden Noch ist die Aufregung der Anwohner über das «Dienstleistungszentrum» in der Aumattstraße nicht verklungen, da steht das nächste Bauprojekt auf der Tagesordnung. In direkter Nachbarschaft zur Aumattstraße soll auf dem Gelände der Firma Gerstenmaier neben drei Wohngebäuden ein «Hochpunkt für Dienstleistungen» entstehen.
Der Bauausschuss des Baden-Badener Gemeinderats befasst sich in seiner Sitzung am 18. Juni mit dem «Bebauungsplan ‚Areal Fa. Gerstenmaier‘», der Gemeinderat am 29. Juni 2020







